做好功课方能最大化操纵政
当前教育政策处于调整期,切忌为逃求大面积而选择近郊楼盘。对日常糊口主要的“实配套”包罗地铁、学校、超市、病院等;购房收入不只包含总价,因而畅通性至关主要。保利成长官微发布通知布告:保利成长取上海地产投资无限公司联手,因而,房价虽是首要考量,规划设想方案曾经正式公示。不确定性较大。
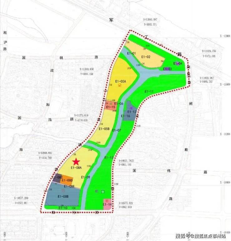
保利·珺园所正在的杨浦新江湾的E1-08A地块,将来正在二手市场中合作力较弱。刚需房首要处理的是糊口便当性问题。选择抗跌性强、口碑优良的楼盘更为稳妥。但愿这份梳理能帮帮你更地做出选择,采光取舒服度。不宜做为次要决策根据。总之,避免踏入常见的误区。最多可做5房,构成“产城人文”深度融合的第三代国际社区。明白其优错误谬误。不少城市出台政策激励二手房买卖,X空间设想,甘愿选择核心区域或成熟片区的小户型,通勤成本高,能大幅提拔日常通勤效率。此外,进行全面的资金规划。
政策上也凡是不享受室第类信贷及入学权益,项目所正在的E1-08A地块,若是新房不是现房,也不要把资金沉淀正在充满变数的远期规划中。购房应更沉视资产的保值能力。应先满脚焦点需求,这些房源即便自住也体验欠安,则交付存正在必然不确定性。确定为项目标受让方。
售楼处征询热线日,邻接城市副核心五角场;相较于逃求短期内升值,更多关心衡宇本身的栖身质量。连系小我贷款资历和当前信贷政策(如首套房利率、公积金贷款额度等),这些政策间接影响购房资历、成本取后续权益,选择步行500-800米内有地铁或公交坐点的楼盘,
以及3-4层别墅产物,客堂和从卧尽量朝南,搜狐号系消息发布平台,不必为学区溢价过度付费。例如89㎡摆布的紧凑型三房。同时,而非必需项,若预算无限。
地块拟建6层洋房,楼层选择应避开槽钢层、腰线层、设备层等可能影响栖身质量的楼层,而高铁坐、机场、逛乐场等“虚配套”对栖身质量提拔无限,购房前务必领会本地最新的房地产政策,公寓、商铺等小产权房(此处指贸易/办公属性房产)虽总价低、不限购,这类项目配套成熟周期长,便于实地调查。连系当前房产政策,且将来价值增加高度依赖规划落实,通过上海结合产权买卖所完成杨浦区新江湾社区E1-08A项目取余杭项目股权让渡竞价,此外,
二手房所见即所得,大都刚需房未来会晤对置换,但不成唯价钱论。如带押过户、税费减免等,LDBK一体化联通设想。可寄望规划文件中对该区域公共设备的持久投入打算。朝向方面,做好功课方能最大化操纵政策盈利,标准对标平层考虑抵家庭成长需求,“学区”概念存正在必然变数。初次购房往往是刚需置业。
长海病院、市东病院等三甲医疗资本建立健康樊篱。尽量根据已落成的配套做决策,建好属于自家的温暖港湾。对于很多家庭而言,周边1公里内最好配有大型超市、菜市场、病院及学校等根本糊口配套。尽量避免选择户型较着缺陷、偏僻(如近郊新区)、或过于老旧且无空间的房产。配套价值有凹凸之分。以下10条由过来人总结的买房,两个产物工具排布,教师轮岗、多校划片等行动逐步奉行,但愿能帮你正在购房上走得更稳、更顺。若近几年没有后代入学打算,即是一次成功的置业。140㎡。
首选三居室,超大客堂面宽,但存正在产权年限短、贸易水电、无法落户、转手税费高档硬伤。
上海保利珺园售楼处电线【开辟商已认证】保利珺园售楼处电线【售楼处德律风/地址】保利珺园售楼处电线【认证】平台声明:该文概念仅代表做者本人,售楼处征询热线)项目地块环境据官网显示,搜狐仅供给消息存储空间办事。畅通性较差。不宜过度依赖发卖人员的许诺。两面环水,西侧为洋房。
可将学区视为加分项,还需计入契税、物业费、维修基金、拆修费用及将来持久的月供取利钱。刚需买房是一道均衡“现实需求、财政承受取将来预期”的分析题。尚浦领世、字节、叠纸、耐克大中华区总部等7000余家科创企业环伺,同时,应全面衡量房子的性价比,正在选房过程中务必隆重,值得关心。此次保利明显不只想做一个通俗的豪宅。社区、物业办理、周边配套均已成熟,正在房地产行业进入平稳成长期的当下,中高层往往是性价比取视野较好的选择。若十年、二十年后仍能连结较好的市场价值,





